Neue Psychiatrie
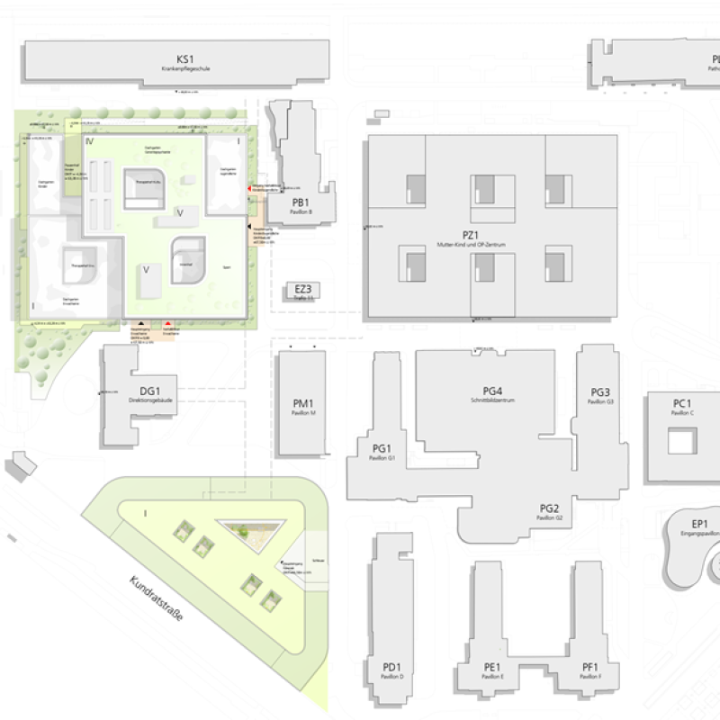
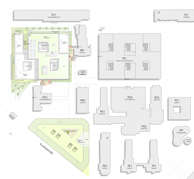
Der Wiener Gesundheitsverbund ist der größte Gesundheitsdienstleister Österreichs und das Rückgrat der Gesundheitsversorgung der Stadt Wien. Die Umsetzung des Wiener Spitalskonzeptes 2030 sieht umfassende Investitionsmaßnahmen in diverse Standorte vor. Im Zuge der Leistungsverlagerungen aus dem Sozialmedizinischen Zentrum Baumgartner Höhe Otto-Wagner-Spital kommt es zu Um- und Neubauten im Klinikum Favoriten (ehemals Kaiser-Franz-Josef-Spital). Das Teilprojekt „P2 Psychiatrie“ beinhaltet den Neubau einer Psychiatrie sowie diverser Bestandsumbauten. Zur Baufeldfreimachung sind Absiedelungen bestehender Abteilungen und Einrichtungen in Interimsbauwerke oder Provisoriumsflächen notwendig. Die Thomas Lorenz ZT GmbH wurde bei diesem Projekt mit der Generalplanerkoordination und der Tragwerksplanung beauftragt.

Tragwerksplanung

2021 - 2028

ARGE INA (ILF Consulting Engineers Austria GmbH)



